menu
0120-081-642
営業時間:10:00~18:00(水・木曜定休 祝日は営業)
(C) MEITETSU CITY DESIGN CO., LTD.
BASIC PLAN基本プラン
MENU PLAN2メニュープラン2
※詳しくは係員にお尋ねください。
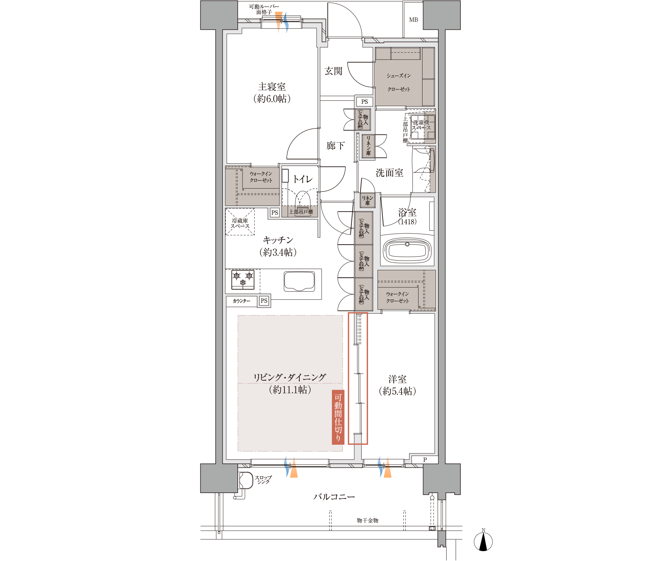
2LDK+2WIC+SIC
住戸専有面積65.74㎡(約19.88坪)
●バルコニー面積/10.44㎡ (約3.15坪)
お料理しながら会話も楽しめる対面式カウンターキッチン。
充実の収納を実現する2つのウォークインクローゼットやシューズインクローゼット、物入を設置。
南向きの明るい住空間。南面居室は心地よい日当たりを実現。
※WIC:ウォークインクローゼット SIC:シューズインクローゼット
※掲載の図面は計画段階(2024年11月時点の情報)のもので、施工上の都合・改良等により変更となる場合があります、予めご了承ください。方位記号は若干誤差があります。
可動仕切りを開放し、LDKと洋室を一体利用することで、最大約16.5帖の広々空間に。
モデルルーム公開中 ご来場希望の方は事前にご予約をお願いいたします。
お問い合わせは「バンベール庄内通 ザ・レジデンス」 マンションギャラリーまで 0120-081-642 営業時間 10:00〜18:00(水・木曜定休 祝日は営業)
〈売主〉