PLAN
Etypeメニュー2
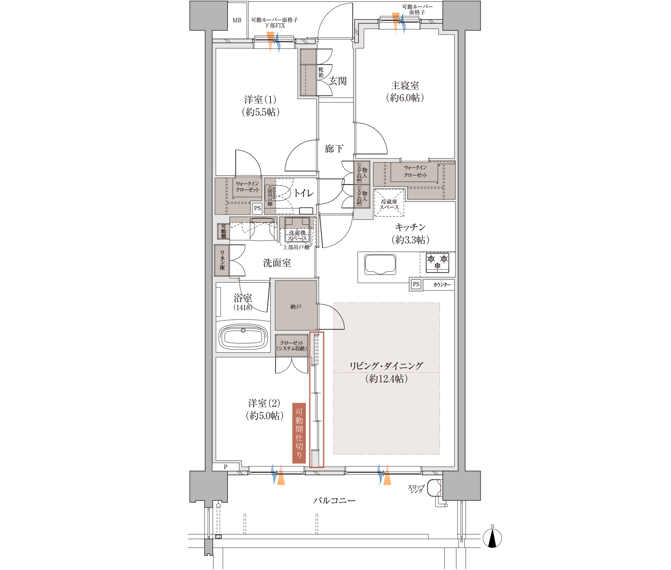
3LDK+2WIC+N
住戸専有面積73.50㎡(約22.23坪)
●バルコニー面積/11.70㎡ (約3.53坪)
お料理しながら会話も楽しめる対面式カウンターキッチン。
充実の収納を実現する2つのウォークインクローゼットや納戸、廊下には物入を設置。
可動仕切りを開放し、LDKと洋室(2)を一体利用することで、最大約20.7帖の広々空間に。
通風
採光
収納
床暖房
※WIC:ウォークインクローゼット N:納戸
※掲載の図面は計画段階(2025年9月時点の情報)のもので、施工上の都合・改良等により変更となる場合があります、予めご了承ください。方位記号は若干誤差があります。

0120-081-642


