PLANプラン
全邸南向き、平均専有面積75㎡超を確保した空間設計。
独立性と快適性を実現した プライベートステージをご用意。
開放感とゆとりを誘うルーフバルコニー付き PREMIUM PLAN
-
Irtype
住戸専有面積91.30㎡(約27.61坪)
基本プラン
3LDK+3WIC+SIC+P
-
Jrtype
住戸専有面積95.17㎡(約28.78坪)
基本プラン
3LDK+2WIC+SIC+P
-
Atype
住戸専有面積80.63㎡(約24.39坪)
基本プラン
3LDK+WIC
-
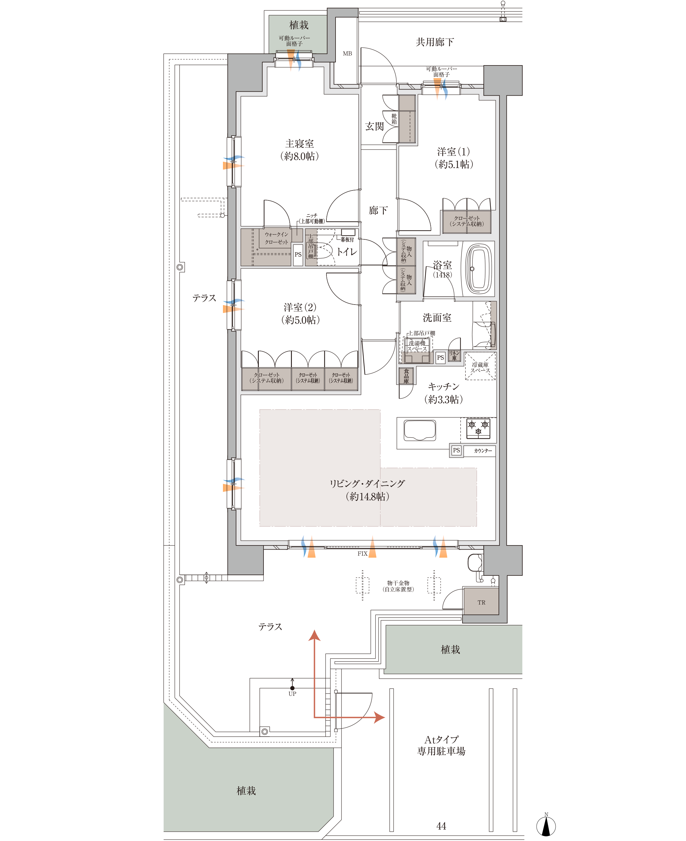
Attype大型犬飼育可能返済例掲載中
住戸専有面積81.43㎡(約24.63坪)※他にトランクルーム面積 0.80㎡あり
基本プラン
3LDK+WIC+TR
-
Btype
住戸専有面積70.27㎡(約21.25坪)
基本プラン
3LDK+WIC
-
Bttype大型犬飼育可能
住戸専有面積71.07㎡(約21.49坪)※他にトランクルーム面積 0.80㎡あり
基本プラン
3LDK+WIC+TR
-
Ctype
住戸専有面積72.16㎡(約21.82坪)
基本プラン
3LDK+WIC
-
Cttype
住戸専有面積72.16㎡(約21.82坪)※他にトランクルーム面積 0.80㎡あり
基本プラン
3LDK+WIC+TR
-
Dtype返済例掲載中
住戸専有面積65.74㎡(約19.88坪)
基本プラン
2LDK+2WIC+SIC
-
Dttype大型犬飼育可能
住戸専有面積66.54㎡(約20.12坪)※他にトランクルーム面積 0.80㎡あり
基本プラン
2LDK+2WIC+SIC+TR
-
Etype
住戸専有面積73.50㎡(約22.23坪)
メニュープラン2
3LDK+2WIC+N
-
Ftype
住戸専有面積73.47㎡(約22.22坪)
基本プラン
3LDK+WIC+N
-
Fttype大型犬飼育可能
住戸専有面積74.27㎡(約22.46坪)※他にトランクルーム面積 0.80㎡あり
基本プラン
3LDK+WIC+N+TR
-
Gtype返済例掲載中
住戸専有面積73.47㎡(約22.22坪)
基本プラン
3LDK+WIC+N
-
Gttype大型犬飼育可能
住戸専有面積74.27㎡(約22.46坪)※他にトランクルーム面積 0.80㎡あり
基本プラン
3LDK+WIC+N+TR
-
Htype
住戸専有面積85.74㎡(約25.93坪)
基本プラン
3LDK+WIC+FC
-
Httype大型犬飼育可能返済例掲載中
住戸専有面積86.54㎡(約26.17坪)※他にトランクルーム面積 0.80㎡あり
基本プラン
3LDK+WIC+FC+TR

0120-081-642


